Planar House - Steven Holl
La casa anterior diseñada por el arquitecto Steven Holl, en New México, era un iceberg de metal que evitó angulos rectos. Su casa más nueva, sin embargo, los abraza.
El cambio fue dictado no por los caprichos estéticos de Holl sino por sus clientes, que se mudaban desde el Medio Oeste a Arizona, con una colección de arte contemporánea grande. Por lo tanto, el diseño de Holl fue doble, ya que se trata de un hogar y a la vez una galería privada.
De hecho, aunque en el exterior el paisaje es magnífico, la pareja estaba menos interesada en las visiónes que este enmarcaban (algo que hace cada casa en esta vecindad) que en trabajos que enmarcaban los gustos de Jeff Koons, de Bruce Nauman y de Roberto Ryman.
Dado ese mandato, Holl buscó una manera de construir la casa que acentuaría las superficies verticales. Él lo encontró en en metodo “tilt-up”, largamente utilizado en la construcción de almacenes: primero se vierte la losa de fundacion, entonces las losas más finas de las paredes se vierten sobre el piso. Cuando los paneles de pared estan fraguados, una grúa los eleva a 90 grados, finalmente la losa de la azotea cierra y traba el lugar.
Pero mientras que las losas de los almacenes se diseñan típicamente para crear superficies limpias, sin ventanas, Holl diseñó sus losas para combinarse en algunos puntos y para divergir en otros. Eso creó fachadas con aberturas pequeñas que dejan entrar la luz, sin sacrificar demasiado el aislamiento de los dueños o los espacios preciosos de la pared. El resultado es la clase de geometría que ha cautivado Holl por lo menos desde que él diseñó el Storefront de Manhattan (con Vito Acconci) en 1993, dándote una fachada se asemeja a un rompecabezas.
Incluso donde Holl utilizó el cristal, él jugó al escondite, colocando unas las hojas de acero perforadas delante de la entrada principal. Las hojas perforadas se extienden en un pasamano hacia la rampa que conduce a la azotea plana de la casa. Un patio delantero pequeño contiene una piscina, este esta pavimentado con esta piedra de arenisca rosada de Arizona.


Holl siguió los protocolos estándares de la construcción para una galería: él puso el piso (en este caso, un mar continuo del granito gris) antes de que una sola pared interior fuera construida. Eso significa que las paredes pueden ser movidas si los dueños deciden cambiar los espacios.
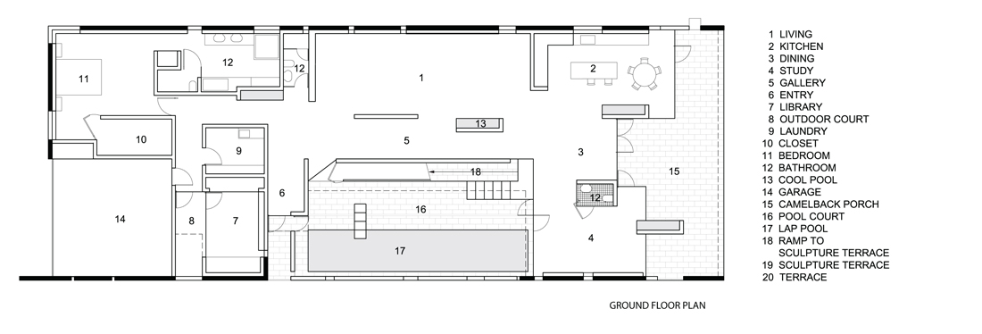
En la configuración actual, hay una larga sala de estar-galeria, una guarida en donde el marido mira la televisión y una oficina para la esposa, con las paredes de yeso en un azul-profundo. El único lugar para dormir está en la habitación de dormitorio principal, con su cuarto de baño. El marido dice que sus compañeros de golf preguntan siempre, “donde están los otros dormitorios?”. Pero si la pareja no desea recibir huespedes, desean la luz.
La cocina, un area para cenar y la guarida comparten una fachada de cristal hacia el sur, protegida por la proyeccion de la losa del techo. Por otra parte, las claraboyas pequeñas envían los rayos de sol que bailan a través de las paredes de yeso y del piso brillante, gris oscuro.
Debajo de tres claraboyas están las piscinas de agua bajas. Holl describió las piscinas como un sistema de aire acondicionado de baja tecnologia: el aire caliente pasaría sobre las piscinas, causando la evaporación y refrescandose antes de ascender a través de las claraboyas. En realidad, los dueños abren raramente una casa que contiene obras de arte frágiles a los elementos. Holl mismo admite que las piscinas y las claraboyas qué él creó era un sistema de aire acondicionado conceptual, un acompañamiento apropiado al arte conceptual de la pareja. De hecho, los dueños, que encontraron a Holl a través de contactos del mundo del arte en Chicago, estan cómodos con él, en parte porque su trabajo les esta dando ideas. Tal como la mayoría de los artistas, da a cada trabajo un nombre, Holl le dio a este trabajo el nombre de Planar House. Como la señora de la casa explica, “la casa es un recipiente para la colección, y es parte también la colección.”
El cambio fue dictado no por los caprichos estéticos de Holl sino por sus clientes, que se mudaban desde el Medio Oeste a Arizona, con una colección de arte contemporánea grande. Por lo tanto, el diseño de Holl fue doble, ya que se trata de un hogar y a la vez una galería privada.
De hecho, aunque en el exterior el paisaje es magnífico, la pareja estaba menos interesada en las visiónes que este enmarcaban (algo que hace cada casa en esta vecindad) que en trabajos que enmarcaban los gustos de Jeff Koons, de Bruce Nauman y de Roberto Ryman.
Dado ese mandato, Holl buscó una manera de construir la casa que acentuaría las superficies verticales. Él lo encontró en en metodo “tilt-up”, largamente utilizado en la construcción de almacenes: primero se vierte la losa de fundacion, entonces las losas más finas de las paredes se vierten sobre el piso. Cuando los paneles de pared estan fraguados, una grúa los eleva a 90 grados, finalmente la losa de la azotea cierra y traba el lugar.
Pero mientras que las losas de los almacenes se diseñan típicamente para crear superficies limpias, sin ventanas, Holl diseñó sus losas para combinarse en algunos puntos y para divergir en otros. Eso creó fachadas con aberturas pequeñas que dejan entrar la luz, sin sacrificar demasiado el aislamiento de los dueños o los espacios preciosos de la pared. El resultado es la clase de geometría que ha cautivado Holl por lo menos desde que él diseñó el Storefront de Manhattan (con Vito Acconci) en 1993, dándote una fachada se asemeja a un rompecabezas.
Incluso donde Holl utilizó el cristal, él jugó al escondite, colocando unas las hojas de acero perforadas delante de la entrada principal. Las hojas perforadas se extienden en un pasamano hacia la rampa que conduce a la azotea plana de la casa. Un patio delantero pequeño contiene una piscina, este esta pavimentado con esta piedra de arenisca rosada de Arizona.


Holl siguió los protocolos estándares de la construcción para una galería: él puso el piso (en este caso, un mar continuo del granito gris) antes de que una sola pared interior fuera construida. Eso significa que las paredes pueden ser movidas si los dueños deciden cambiar los espacios.
En la configuración actual, hay una larga sala de estar-galeria, una guarida en donde el marido mira la televisión y una oficina para la esposa, con las paredes de yeso en un azul-profundo. El único lugar para dormir está en la habitación de dormitorio principal, con su cuarto de baño. El marido dice que sus compañeros de golf preguntan siempre, “donde están los otros dormitorios?”. Pero si la pareja no desea recibir huespedes, desean la luz.
La cocina, un area para cenar y la guarida comparten una fachada de cristal hacia el sur, protegida por la proyeccion de la losa del techo. Por otra parte, las claraboyas pequeñas envían los rayos de sol que bailan a través de las paredes de yeso y del piso brillante, gris oscuro.
Debajo de tres claraboyas están las piscinas de agua bajas. Holl describió las piscinas como un sistema de aire acondicionado de baja tecnologia: el aire caliente pasaría sobre las piscinas, causando la evaporación y refrescandose antes de ascender a través de las claraboyas. En realidad, los dueños abren raramente una casa que contiene obras de arte frágiles a los elementos. Holl mismo admite que las piscinas y las claraboyas qué él creó era un sistema de aire acondicionado conceptual, un acompañamiento apropiado al arte conceptual de la pareja. De hecho, los dueños, que encontraron a Holl a través de contactos del mundo del arte en Chicago, estan cómodos con él, en parte porque su trabajo les esta dando ideas. Tal como la mayoría de los artistas, da a cada trabajo un nombre, Holl le dio a este trabajo el nombre de Planar House. Como la señora de la casa explica, “la casa es un recipiente para la colección, y es parte también la colección.”
Arquitecto: Steven Holl Architects
Ubicacion: Paradise Valley, AZ, USA
Equipo de Diseño: Steven Holl (design architect), Martin Cox (project architect), Tim Bade (schematic design), Robert Edmonds, Annette Goderbauer, Hideki Hirahara, Clark Manning (project team)
Año Proyecto: 2002-2005
Ingeniero Estructural: Rudow & Berry
Ingeniero Mecanico: Roy Otterbein
Ingeniero Civil: Fleet Fisher Engineering
Ingeniero Electrico: Associated Engineering
Paisajismo: Steve Martino & Associates
Fotografias: Bill Timmerman
Ubicacion: Paradise Valley, AZ, USA
Equipo de Diseño: Steven Holl (design architect), Martin Cox (project architect), Tim Bade (schematic design), Robert Edmonds, Annette Goderbauer, Hideki Hirahara, Clark Manning (project team)
Año Proyecto: 2002-2005
Ingeniero Estructural: Rudow & Berry
Ingeniero Mecanico: Roy Otterbein
Ingeniero Civil: Fleet Fisher Engineering
Ingeniero Electrico: Associated Engineering
Paisajismo: Steve Martino & Associates
Fotografias: Bill Timmerman














































Publicar un comentario