Vivienda Colectiva: Edificio Calle Orfila - Abalos + Sentkiewicz arquitectos
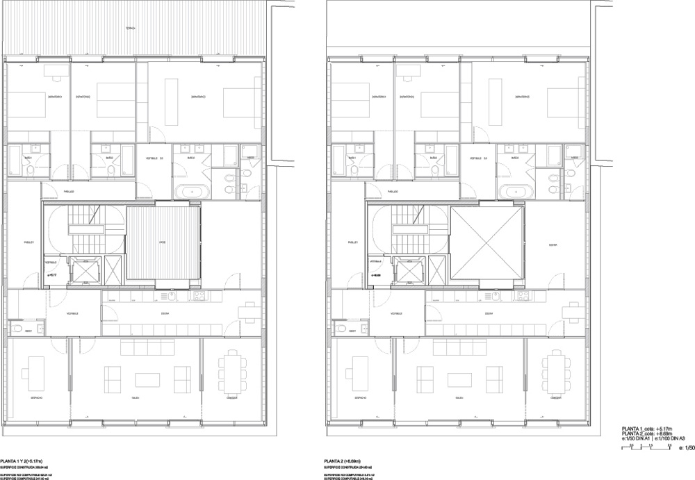
Un edificio sobre los terrenos de las antiguas caballerizas del Palacio Coca en el centro de Madrid da pie a experimentar con los puntos de coincidencia entre la tradición de los miradores madrileños y un muro cortina permeable y protegido del sol, permitiendo conjugar al interior el confort tradicional de las habitaciones encadenadas y con gran volumen, con la limpieza de los espacios contemporáneos y su fluidez interior-exterior.
Al mismo tiempo el contexto, condicionado tanto por el Palacio como por el arbolado de gran porte existente, nos ha llevado a imaginar el pequeño edificio como un pabellón a la vez respondiendo a todos los estímulos del contexto y a ninguno, aparentemente ensimismado en sus propias leyes de organización espacial y material.
Cliente: OLABE S.L
Arquitectura: Ábalos + Sentkiewicz arquitectos
Directores del proyecto: Iñaki Ábalos, Renata Sentkiewicz
Colaboradores: Víctor Garzón (coordinación), Elena Cuerda, Juan José González, Luis Matanzo, Alfredo Muñoz, Jens Richter
Estructuras: NB35
Instalaciones: Pedro Blanco
Arquitecto Técnico: Ramón Paradinas
Infografías: Jens Richter
Situación: Calle Orfila, Madrid, España
Situación: Calle Orfila, Madrid, España
Programa: Vivienda
Superficie construida: 1.984m2
Presupuesto: 2.350.000€
Estado: Obra acabada
Año: 2003-2009

























Publicar un comentario