Residencia RR - Andrade Morettin Arquitectos
La casa de verano ofrece amplias oportunidades a la experimentación arquitectónica, con un casual y relajado ambiente que se opone a los espacios convencionales. El clima semi-tropical de Itamambuca en el estado de San Pablo, era un sitio dificil para luchar con la intensa humedad, el calor del sol y las lluvias fuertes, y lo que los arquitectos describen como 'exuberante vegetación' , a pesar de que la parcela se encuentra a solo unos pocos metros de la playa.
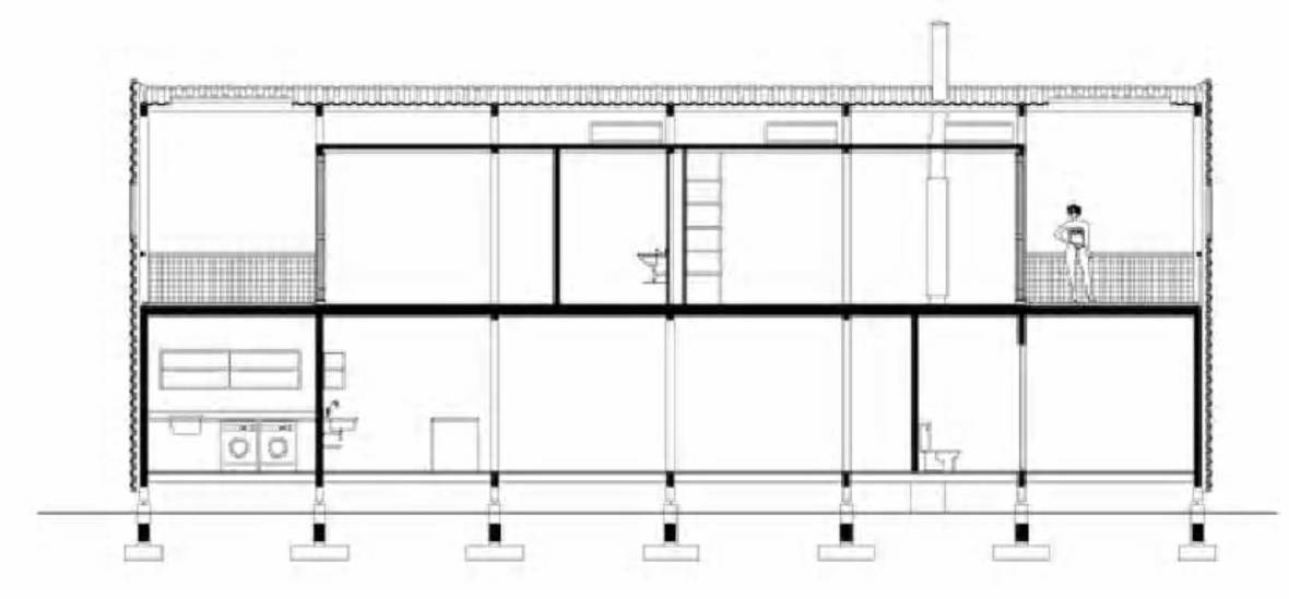
La solución es la simplicidad en sÃ, los arquitectos decidieron encerrar a sus clientes y los espacios cotidianos dentro de una ligera 'concha', una estructura de madera que se levantó sobre pilares de concreto y revestida con una combinación de paneles de acero con aislamiento y un ingenioso sistema de pantallas deslizantes de fibra de vidrio con mosquiteros.
Los propietarios pueden, por lo tanto, relajarse, rodeados de una permeabilidad, la membrana transparente, que permite el ingreso de las brisas marinas al centro de esta cueva de alta tecnologÃa sin tener que invitar al suministro sin fin de invertebrados de la region.
Dentro de este recinto se encuentra otra esbelta estructura, y cuenta con dos cajas de madera donde se aloja el estar, la cocina y el comedor, junto con los cuartos de baño y un dormitorio en el nivel inferior y otros dos dormitorios, en la parte superior, cada uno con su propia zona de la cubierta. Una combinación completa de pantallas de madera tallada y vidrio que permiten la apertura de estos compartimentos para convertirse en parte del area principal de doble altura que da al salon, de seis metros de altura, lo que a su vez se abrer al mundo exterior.
La imagen industrial de la estructura que hace sentir el generoso volumen de 220 metros cuadrados de la casa es compensada por una pared verde de vegetacion que la rodea, y en el interior la sensacion de estar afuera en una plataforma en la selva se ve reforzada por las hamacas colgadas casualmente en el marco de madera. La prefabricación mantuvo los bajos costos y acelero la construcción.
La solución es la simplicidad en sÃ, los arquitectos decidieron encerrar a sus clientes y los espacios cotidianos dentro de una ligera 'concha', una estructura de madera que se levantó sobre pilares de concreto y revestida con una combinación de paneles de acero con aislamiento y un ingenioso sistema de pantallas deslizantes de fibra de vidrio con mosquiteros.
Los propietarios pueden, por lo tanto, relajarse, rodeados de una permeabilidad, la membrana transparente, que permite el ingreso de las brisas marinas al centro de esta cueva de alta tecnologÃa sin tener que invitar al suministro sin fin de invertebrados de la region.
Dentro de este recinto se encuentra otra esbelta estructura, y cuenta con dos cajas de madera donde se aloja el estar, la cocina y el comedor, junto con los cuartos de baño y un dormitorio en el nivel inferior y otros dos dormitorios, en la parte superior, cada uno con su propia zona de la cubierta. Una combinación completa de pantallas de madera tallada y vidrio que permiten la apertura de estos compartimentos para convertirse en parte del area principal de doble altura que da al salon, de seis metros de altura, lo que a su vez se abrer al mundo exterior.
La imagen industrial de la estructura que hace sentir el generoso volumen de 220 metros cuadrados de la casa es compensada por una pared verde de vegetacion que la rodea, y en el interior la sensacion de estar afuera en una plataforma en la selva se ve reforzada por las hamacas colgadas casualmente en el marco de madera. La prefabricación mantuvo los bajos costos y acelero la construcción.
FUENTE: Andrade Morettin Arquitetos






























Could you help me contact the designer please.
ResponderEliminarRegards,
Ryan
ryanwhiteorchid@gmail.com
la casa esta guapa y grande pero seguro que muy cara y con la crisis...no creo que la compre mucha gente pero bueno...que tengas clientera jaja
ResponderEliminarNueva promoción para publicar inmuebles gratis.
ResponderEliminarhousetic