Casa en Mercedes - Estudio LGR
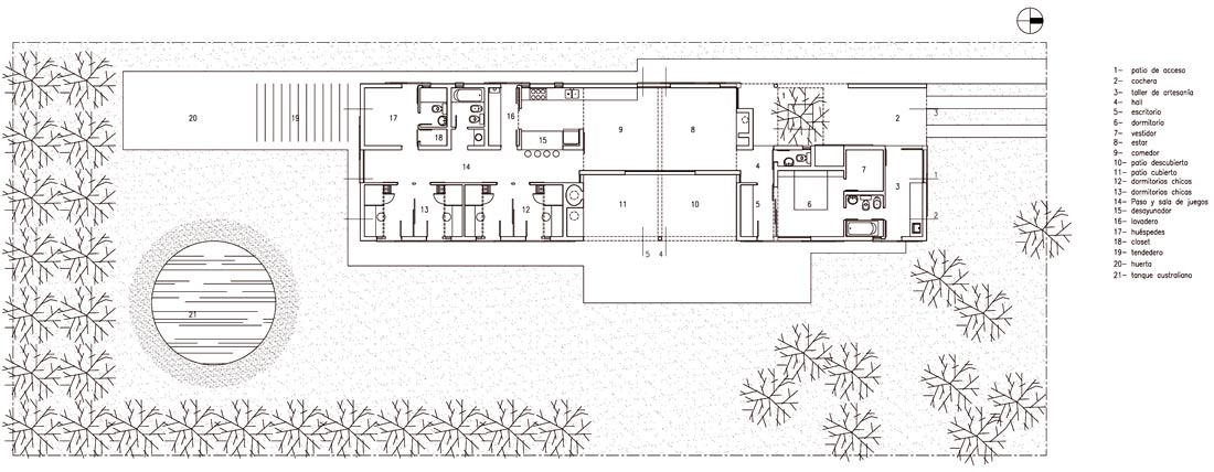
Casa en el campo para una familia numerosa, la disposición en una sola planta reducirá la posibilidad de accidentes y permitirá la relación funcional directa de todos los locales con el exterior. El área social será central a las privadas, independizándolas. La inconveniente orientación del lote para un programa doméstico se aprovechará para producir los accesos de luces cenitales que permiten los cambios de alturas de los locales en relación a su proporción. Forma definida en contrapunto al dominio natural, contendrá variedad de espacios interiores y exteriores. Economía, velocidad de ejecución.
Una obra de arquitectura debe vincularse con el observador-usuario de una manera respetuosa. Esto es colocarlo en una posición activa, sugerir más que proclamar; movilizar, estimular.
El camino de la abstracción alimenta esta posibilidad, pone al observador en el compromiso de elaborar interpretaciones propias de lo que se le presenta y además permite formalizar sin asociaciones concretas la variedad aparentemente inconexa de cuestiones a las que el pensamiento/sentimiento del arquitecto se expone.
Trabajaremos en la pertinencia de estas cuestiones ordenándolas utilizando un mecanismo no-figurativo, abstracto.Construiremos un repertorio de ideas en relación a nuestras inquietudes, a la complejidad del problema arquitectónico.
Formularemos ideas y verificaremos su pertinencia según la abstracción elegida. Se desenredará la memoria, se hará consciente el origen de esta elección, el referente, y se intentará reproponer para avanzar en la obtención de ciertos márgenes de novedad.Pondremos en juego nuestra propia experiencia vivencial para idear desde lo concreto la posibilidad de transformación del hábitat.La elección de los temas, intenta sacarle el mayor provecho a la experiencia. La presencia de un programa indica un posible usuario y la sugerencia de agrupamiento-relaciones una opinión para una “mejor” organización de lo cotidiano.
La actividad proyectual no es científica.
El proyecto es el ordenamiento de unas decisiones, no siempre coherentes entre sí, según un mecanismo formal, abstracto.
Esto no constituye ningún hallazgo, pero en el actual contexto, una importante definición, un punto de partida.Abordaremos el trabajo desde esta certeza para centrarnos en cuestionar, identificar, caracterizar el enfoque y la complejidad de las decisiones.
Esto no constituye ningún hallazgo, pero en el actual contexto, una importante definición, un punto de partida.Abordaremos el trabajo desde esta certeza para centrarnos en cuestionar, identificar, caracterizar el enfoque y la complejidad de las decisiones.
Una obra de arquitectura debe vincularse con el observador-usuario de una manera respetuosa. Esto es colocarlo en una posición activa, sugerir más que proclamar; movilizar, estimular.
El camino de la abstracción alimenta esta posibilidad, pone al observador en el compromiso de elaborar interpretaciones propias de lo que se le presenta y además permite formalizar sin asociaciones concretas la variedad aparentemente inconexa de cuestiones a las que el pensamiento/sentimiento del arquitecto se expone.
Trabajaremos en la pertinencia de estas cuestiones ordenándolas utilizando un mecanismo no-figurativo, abstracto.Construiremos un repertorio de ideas en relación a nuestras inquietudes, a la complejidad del problema arquitectónico.
Formularemos ideas y verificaremos su pertinencia según la abstracción elegida. Se desenredará la memoria, se hará consciente el origen de esta elección, el referente, y se intentará reproponer para avanzar en la obtención de ciertos márgenes de novedad.Pondremos en juego nuestra propia experiencia vivencial para idear desde lo concreto la posibilidad de transformación del hábitat.La elección de los temas, intenta sacarle el mayor provecho a la experiencia. La presencia de un programa indica un posible usuario y la sugerencia de agrupamiento-relaciones una opinión para una “mejor” organización de lo cotidiano.









Publicar un comentario