Casa en Guarujá - Bernardes Jacobsen
La idea del proyecto se generó cuando Thiago Bernardes visitaba el terreno. Ahí, frente al cliente, él diseñó lo que luego sería una sección transversal de la propuesta: una casa de vacaciones para una pareja y sus dos hijos, así como un lugar donde poder invitar amigos cada cierto tiempo.
La casa fue diseñada como un pabellón con el apoyo de sólo cinco pilares que contienen una secuencia de habitaciones, sala de estar, comedor, terraza y una piscina frente a la impresionante vista de la playa de la isla.
La vegetación del terreno se conserva, protegiendo a la residencia; una de sus caras entrega una vista privilegiada mientras la otra, frente a la calle, se compone de una fachada baja y discreta. El mar es el foco principal de la construcción, pero no sigue la mejor orientación solar. Con el objetivo de aprovechar esta gran vista, se tomó la decisión de poner la piscina fuera del edificio, orientando la casa con su fachada principal hacia el este.
Debido a la pendiente, se diseñó una estructura de 18 metros como base para el desarrollo del proyecto. Esta superficie se apoya sobre cinco pilares en forma de árbol. Sobre ella aparece la estructura metálica, la que facilitó el proceso de construcción. Así la casa se separa de la tierra, comportándose como un gran árbol, preservando los bosques naturales. Esta plataforma cubre toda el área de la casa más una amplia terraza al aire libre con la piscina al final.
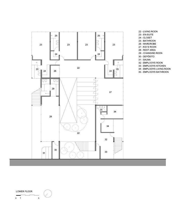
Nuevos árboles fueron plantados en este nivel, aumentando la sensación de estar en medio del bosque. Desde fuera, pareciera que la casa se limita a dos pisos por encima de la cubierta, pero en realidad la mayor parte de su planta se encuentra debajo de ella. La casa tiene acceso al segundo piso, donde están las habitaciones. Bajo la cubierta de la casa se encuentra la cocina, lavandería, sauna y el gimnasio. Toda la casa se estructura en acero, mientras que las puertas y ventanas son de madera y vidrio.
Arquitectos: Bernardes Jacobsen – Thiago Bernardes, Paulo Jacobsen
Ubicación: São Paulo, Brasil
Superficie Construida: 1300 m2
Fecha: 2007
Fotografía: Leonardo Finotti
Mira aqui otros trabajos de Bernardes Jacobsen publicados en Tecnohaus:

Publicar un comentario