Jackson House - DLF Studio
Ubicación:
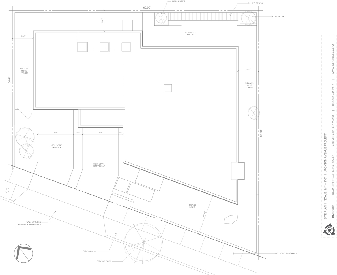
El proyecto se encuentra a poca distancia del centro de Culver City, un pequeño municipio en el lado oeste de Los Ángeles, California. La casa de 2 plantas está situada en un terreno trapezoidal sub-estándar, de 269 m² ocupado por una casa de 56 m² que fue substituida ya que se encontraba en ruinas.
Descripcion:
Los 186 m² de la casa tomaron forma como resultado de la extraña forma del terreno, el respeto de los códigos de zonificación locales, así como a las preocupaciones expresadas por la privacidad de un vecino. Sin embargo, el reto es maximizar el volumen deseado y el espacio sin ofender la escala del lugar. El resultado fue una audaz declaración contextual en un típico lenguaje arquitectónico y homogéneo al vecindario.
Debido a condiciones climáticas del sur de California se realizo las operaciones en aberturas que se observan en el segundo piso ya que una brisa prevalece en esa parte de la ciudad constantemente, así como la luz directa del sol que baña la fachada durante el día.
El programa consiste en una “Gran Sala” (incluyendo la entrada, salón, comedor y cocina) Powder Room o medio Baño, baño secundario, Master Suite, Terraza y un estudio que podría convertirse en el futuro dos dormitorios.
El proyecto se encuentra a poca distancia del centro de Culver City, un pequeño municipio en el lado oeste de Los Ángeles, California. La casa de 2 plantas está situada en un terreno trapezoidal sub-estándar, de 269 m² ocupado por una casa de 56 m² que fue substituida ya que se encontraba en ruinas.
Descripcion:
Los 186 m² de la casa tomaron forma como resultado de la extraña forma del terreno, el respeto de los códigos de zonificación locales, así como a las preocupaciones expresadas por la privacidad de un vecino. Sin embargo, el reto es maximizar el volumen deseado y el espacio sin ofender la escala del lugar. El resultado fue una audaz declaración contextual en un típico lenguaje arquitectónico y homogéneo al vecindario.
En lugar de tomar la McMansion en función del diseño meramente se optó por articular el volumen del edificio en una manera que pueda dar fachada más profundamente en un sentido figurado y literal. Luego, articular cada masa resultante de la aplicación de nuevos materiales contrastantes, como IPE, estuco de acabado suave, estuco acabado a mano.
Debido a condiciones climáticas del sur de California se realizo las operaciones en aberturas que se observan en el segundo piso ya que una brisa prevalece en esa parte de la ciudad constantemente, así como la luz directa del sol que baña la fachada durante el día.
El programa consiste en una “Gran Sala” (incluyendo la entrada, salón, comedor y cocina) Powder Room o medio Baño, baño secundario, Master Suite, Terraza y un estudio que podría convertirse en el futuro dos dormitorios.
Ubicación: Culver City (Los Angeles), California, USA
Área Terreno: 269 m²
Área: 185 m²
Constructor: GSB Construction Inc.
Paisajismo: DLFstudio
Inicio Proyecto: 2005
Culminación Proyecto: 2006























Publicar un comentario