Casa Rota - Manuel Ocaña
Una conocida ‘Dama del Teatro’, soltera, de 65 años, cuyo sueño era tener una piscina en casa, nos encarga la reforma de una oscura vivienda entre medianeras en el centro de Madrid. Las condiciones: Satisfacer sus deseos de tener esa piscina, un loft con ascensor, y mucha luz natural.
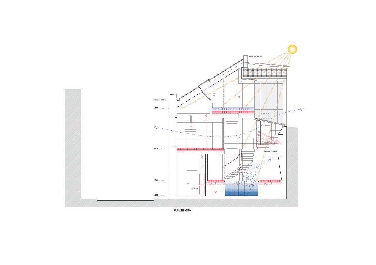
Mediante sencillas operaciones de demolición se abrieron los forjados en cascada hacia el sur para que la luz natural rebose por los tres niveles. Se transforma así el patio en un espacio interior vertical que desborda la piscina por la casa. Por otro lado la incorporación en unos 400 m3 de programa doméstico de 20 m3 de agua a 37ºC requería de un exhaustivo estudio de acondicionamiento y, sobre todo, de la participación activa del usuario. Un usuario que debe concienciarse de que disfrutará de un amplio catálogo de experiencias domésticas solo si participa activamente en el funcionamiento de la casa.
Ubicación: Travesía de Conde Duque Madrid, España
La finca es de 8×8 metros en dos plantas más un espacio bajo cubierta. Cuenta con una única fachada en una estrecha y oscura calle con orientación norte y un angosto patio de 2 x 2 metros adosado al fondo. Y es en ese fondo de la parcela, a la altura de la buhardilla y mirando a sur, donde se descubre lo más interesante de la casa: una maravillosa y luminosa vista de los tejados del Madrid histórico. Ese será el foco desde donde inundar la casa de sol. Llegar desde la calle a ese punto será el premio. De esta forma, desde la tétrica entrada se alcanza una luminosa atalaya de vistas privilegiadas. En el “cómo” y el “durante” del recorrido estará el desarrollo de la propuesta.
Mediante sencillas operaciones de demolición se abrieron los forjados en cascada hacia el sur para que la luz natural rebose por los tres niveles. Se transforma así el patio en un espacio interior vertical que desborda la piscina por la casa. Por otro lado la incorporación en unos 400 m3 de programa doméstico de 20 m3 de agua a 37ºC requería de un exhaustivo estudio de acondicionamiento y, sobre todo, de la participación activa del usuario. Un usuario que debe concienciarse de que disfrutará de un amplio catálogo de experiencias domésticas solo si participa activamente en el funcionamiento de la casa.
La casa integra cuatro máquinas para controlar y acondicionar la temperatura y la humedad de los ambientes según las propias apetencias de confort. El acondicionamiento pasivo se resuelve mediante ventilación cruzada. La planta baja es waterproof (los suelos, paredes y techos están pintados con clorocaucho blanco y las escaleras de chapa tratadas con barniz marino), lo que permite crear situaciones inéditas de confort en un ambiente doméstico como, por ejemplo, sumergirse en el agua caliente de la piscina, abrir el lucernario descapotable, y permitir que la lluvia o la nieve entren dentro de tu casa.
Ubicación: Travesía de Conde Duque Madrid, España
Arquitecto: Manuel Ocaña
Colaboradores: Roberto González García, Lucía Martínez, Sebastian Camacho (Pintura piscina)Promotor: C.R.
Año: 2006
Contratista: Manuel Ocaña
Superficie construida: 163 m2
Presupuesto: €130.000 (US$107.000, CLP$109.000.000)
Fotografía: Miguel de Guzmán


















Publicar un comentario