Casa 101 - H Arquitectes
Encargo
Vivienda unifamiliar adosada para una joven pareja con un hijo en Mollet del Vallès, población situada a unos quince kilómetros de Barcelona.
El solar se sitúa en una esquina de un barrio típico de centro urbano en este tipo de poblaciones, caracterizado por las viviendas adosadas –para obreros- que formaron estos tejidos a principios de siglo XX en nuestro territorio.
Propuesta
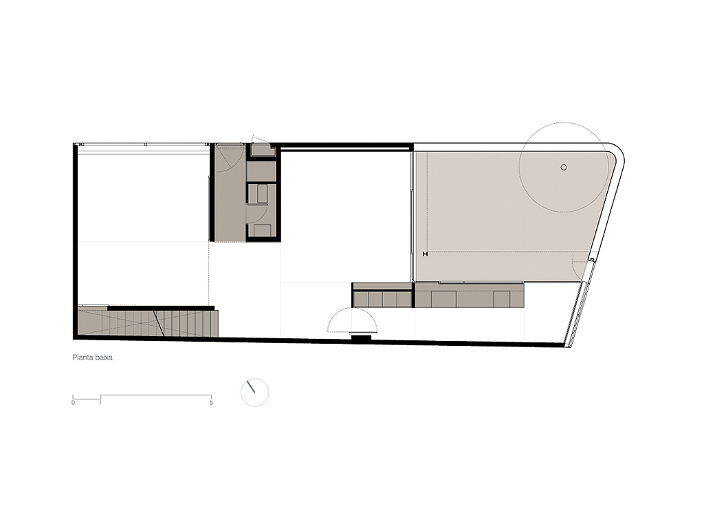
La casa adosada tradicional, cuando se sitúa en esquina, plantea un doble problema, por una lado la dificultad en el esquema programático, por otro la imposibilidad de situar un patio al fondo de la parcela, como si sucede en las tipologías adosadas entre medianeras, ambos problemas se solventan colocando un patio precisamente en la esquina del solar, estructurando el programa de la vivienda en planta baja alrededor del mismo.
La parcela de en frente –un restaurante- tiene un jardín con unos pinos centenarios, también en la esquina. Des de nuestro patio se ven las copas de esos magníficos árboles.
Respecto a la casa, a pesar de que la normativa permite edificar tres plantas y ocupar la totalidad de la parcela, la tipología elegida y aceptada por el cliente, desarrolla la vivienda en dos únicas plantas. La planta baja no agota la ocupación máxima con la aparición del mencionado patio en esquina, alrededor del cual se sitúan cocina y sala, totalmente continuos, en términos de espacio y pavimento, con el espacio exterior. La planta piso tampoco agota la ocupación, ya que, al vacío del patio se suman una terraza y un patio que articulan las habitaciones de esta planta, evitando la abertura de ventanas directamente a la calle.
El aparcamiento está ampliamente conectado con el salón a través de una gran puerta corredera que permite una interpretación flexible de los usos en la planta baja, hasta el punto de poder unificar todos sus espacios, incluido el patio, en acontecimientos excepcionales.
La casa, mediante la aparición de los dos patios, está orientada norte-sur para obtener un buen nivel de asoleo, así como una ventilación cruzada eficaz. Elementos tradicionales y basados en el sentido común como son los voladizos, los patios y la ventilación cruzada son las características que permiten un esquema de aprovechamiento energético razonable y económico. La construcción utiliza deliberadamente materiales y sistemas constructivos tradicionales al alcance de cualquier empresa constructora –pequeña- de la zona. La casa se construyó sin a penas desviación respecto al presupuesto previsto inicialmente. Casi todo pareció fácil.
Obra: Casa 101
Ubicación: Mollet del Vallès, Catalunya. España.
Arquitectos: H Arquitectes - David Lorente, Josep Ricart, Xavier Ros, Roger Tudó
Colaboradores: Marta Casas (arquitecta), Xavier Aguiló (ingeniero estructural), Ramón Antón, (arquitecto técnico)
Premios y menciones: 1er premio de la 4ª Biennal d’Arquitectura del Vallès. 2007.
Año de realización: 2002-05
Superficie construida: 211 m2
Coste de la obra: 220.000€ (US$345,468 - CLP$155.460.600)
Fotógrafo: Starp Estudi
Vivienda unifamiliar adosada para una joven pareja con un hijo en Mollet del Vallès, población situada a unos quince kilómetros de Barcelona.
El solar se sitúa en una esquina de un barrio típico de centro urbano en este tipo de poblaciones, caracterizado por las viviendas adosadas –para obreros- que formaron estos tejidos a principios de siglo XX en nuestro territorio.
Propuesta
La casa adosada tradicional, cuando se sitúa en esquina, plantea un doble problema, por una lado la dificultad en el esquema programático, por otro la imposibilidad de situar un patio al fondo de la parcela, como si sucede en las tipologías adosadas entre medianeras, ambos problemas se solventan colocando un patio precisamente en la esquina del solar, estructurando el programa de la vivienda en planta baja alrededor del mismo.
La parcela de en frente –un restaurante- tiene un jardín con unos pinos centenarios, también en la esquina. Des de nuestro patio se ven las copas de esos magníficos árboles.
Respecto a la casa, a pesar de que la normativa permite edificar tres plantas y ocupar la totalidad de la parcela, la tipología elegida y aceptada por el cliente, desarrolla la vivienda en dos únicas plantas. La planta baja no agota la ocupación máxima con la aparición del mencionado patio en esquina, alrededor del cual se sitúan cocina y sala, totalmente continuos, en términos de espacio y pavimento, con el espacio exterior. La planta piso tampoco agota la ocupación, ya que, al vacío del patio se suman una terraza y un patio que articulan las habitaciones de esta planta, evitando la abertura de ventanas directamente a la calle.
El aparcamiento está ampliamente conectado con el salón a través de una gran puerta corredera que permite una interpretación flexible de los usos en la planta baja, hasta el punto de poder unificar todos sus espacios, incluido el patio, en acontecimientos excepcionales.
La casa, mediante la aparición de los dos patios, está orientada norte-sur para obtener un buen nivel de asoleo, así como una ventilación cruzada eficaz. Elementos tradicionales y basados en el sentido común como son los voladizos, los patios y la ventilación cruzada son las características que permiten un esquema de aprovechamiento energético razonable y económico. La construcción utiliza deliberadamente materiales y sistemas constructivos tradicionales al alcance de cualquier empresa constructora –pequeña- de la zona. La casa se construyó sin a penas desviación respecto al presupuesto previsto inicialmente. Casi todo pareció fácil.
Obra: Casa 101
Ubicación: Mollet del Vallès, Catalunya. España.
Arquitectos: H Arquitectes - David Lorente, Josep Ricart, Xavier Ros, Roger Tudó
Colaboradores: Marta Casas (arquitecta), Xavier Aguiló (ingeniero estructural), Ramón Antón, (arquitecto técnico)
Premios y menciones: 1er premio de la 4ª Biennal d’Arquitectura del Vallès. 2007.
Año de realización: 2002-05
Superficie construida: 211 m2
Coste de la obra: 220.000€ (US$345,468 - CLP$155.460.600)
Fotógrafo: Starp Estudi
















Publicar un comentario