Casa Lago Pirehueico - Alejandro Aravena
Cuando encontramos al cliente la primera vez, nos pidió hacer una casa color sombra. Nos pareció una pregunta interesante y aceptamos entonces diseñar una casa privada.
Se nos encargó una casa de veraneo (e inverneo) en un terreno remoto y virgen del sur de Chile. MĆ”s que un diseƱo, el cliente nos pedĆa formular una ecuación, que incluyera todas aquellas variables que vinieran al caso y luego buscar una forma que fuese la pura expresión de tal ecuación: Un terreno volcĆ”nico, 4000 mm de precipitaciones anuales, fuerte radiación UV, vientos desde el norte y el oriente, vistas hacia el lago (norte), hacia el parque (sur) y algunos otros puntos especĆficos, soleamiento adecuado, consideración de la condición remota de la obra al momento de escoger materiales y tecnologĆas constructivas, desglose pormenorizado de la manera en que se usarĆa la casa, eliminación de cualquier posible romanticismo asĆ como de contemporaneidades a priori en la definición del lenguaje arquitectónico, eran los ingredientes de este plato desconocido pero que debĆa resultar familiar una vez hecho.
Dado que el clima era una de las condiciones mĆ”s extremas, partimos por arriesgar lo menos posible: un convencional techo a dos aguas apto para las precipitaciones. De a poco, empezamos a extender las aguas hacia los bordes hasta tocar las ventanas en el perĆmetro buscando respetar las vistas y al mismo tiempo esquivar los vientos segĆŗn fuera el caso.
La regla para las ventanas siguió el mismo principio de un surfista entrando al mar buscando esquivar las olas: o eran delgadas o eran bajas. Si la ventana buscaba enmarcar un elemento vertical como un Ôrbol o un sendero adentrÔndose en el bosque por ejemplo, entonces la ventana era alta pero esbelta; si ellas enmarcaban una vista horizontal, como el lago o el volcÔn, entonces eran anchas pero bajas.
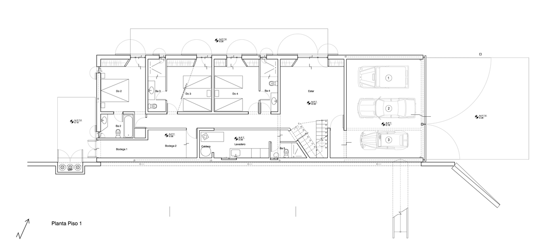
Esta misma lógica de la vista y el esquive, expresada en ventanas como marcos muy secos, explica la geometrĆa de la planta del segundo piso. La planta del primer piso en cambio es una caja regular y resistente (por los sismos y el terreno volcĆ”nico, pero tambiĆ©n por la seguridad necesaria para casas que pasan parte del aƱo cerradas).
Las piedras salieron de canteras cercanas, y las maderas, del despeje de bosque que hubo que hacer para construir. La oscuridad del objeto serĆ” la manera de restituir parte de la densidad y virginidad original del lugar.
Arquitectos: Alejandro Aravena, Jorge Christie, Victor Oddó
AƱo de proyecto: 2003
Año de construcción: 2004
Localización: Lago Pirehueico, 800 km al sur de Santiago, Chile
Superficie construida: 350m2
Se nos encargó una casa de veraneo (e inverneo) en un terreno remoto y virgen del sur de Chile. MĆ”s que un diseƱo, el cliente nos pedĆa formular una ecuación, que incluyera todas aquellas variables que vinieran al caso y luego buscar una forma que fuese la pura expresión de tal ecuación: Un terreno volcĆ”nico, 4000 mm de precipitaciones anuales, fuerte radiación UV, vientos desde el norte y el oriente, vistas hacia el lago (norte), hacia el parque (sur) y algunos otros puntos especĆficos, soleamiento adecuado, consideración de la condición remota de la obra al momento de escoger materiales y tecnologĆas constructivas, desglose pormenorizado de la manera en que se usarĆa la casa, eliminación de cualquier posible romanticismo asĆ como de contemporaneidades a priori en la definición del lenguaje arquitectónico, eran los ingredientes de este plato desconocido pero que debĆa resultar familiar una vez hecho.
Dado que el clima era una de las condiciones mĆ”s extremas, partimos por arriesgar lo menos posible: un convencional techo a dos aguas apto para las precipitaciones. De a poco, empezamos a extender las aguas hacia los bordes hasta tocar las ventanas en el perĆmetro buscando respetar las vistas y al mismo tiempo esquivar los vientos segĆŗn fuera el caso.
La regla para las ventanas siguió el mismo principio de un surfista entrando al mar buscando esquivar las olas: o eran delgadas o eran bajas. Si la ventana buscaba enmarcar un elemento vertical como un Ôrbol o un sendero adentrÔndose en el bosque por ejemplo, entonces la ventana era alta pero esbelta; si ellas enmarcaban una vista horizontal, como el lago o el volcÔn, entonces eran anchas pero bajas.
Esta misma lógica de la vista y el esquive, expresada en ventanas como marcos muy secos, explica la geometrĆa de la planta del segundo piso. La planta del primer piso en cambio es una caja regular y resistente (por los sismos y el terreno volcĆ”nico, pero tambiĆ©n por la seguridad necesaria para casas que pasan parte del aƱo cerradas).
Las piedras salieron de canteras cercanas, y las maderas, del despeje de bosque que hubo que hacer para construir. La oscuridad del objeto serĆ” la manera de restituir parte de la densidad y virginidad original del lugar.
Arquitectos: Alejandro Aravena, Jorge Christie, Victor Oddó
AƱo de proyecto: 2003
Año de construcción: 2004
Localización: Lago Pirehueico, 800 km al sur de Santiago, Chile
Superficie construida: 350m2






























Publicar un comentario