Casa Widescreen - R Zero Studio
Ubicada en el Club de Golf San Gaspar en Jiutepec de Morelos, en un terreno de 1,600 metros cuadrados en lo alto de un cerro; Widescreen se materializa en una sola planta para albergar un programa versátil. Hoy es una casa de descanso, pero mañana se convertirá en una residencia donde el cliente disfrutará de su retiro.
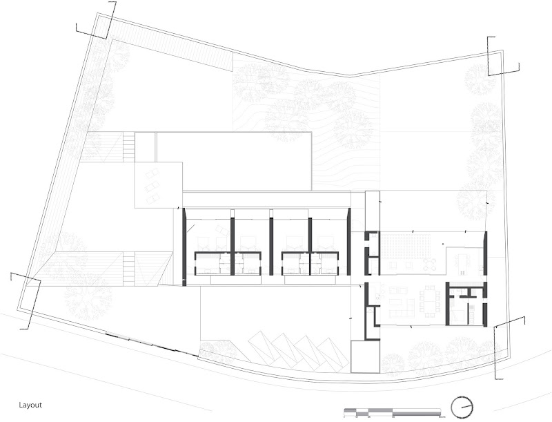
La casa se resuelve en dos volúmenes de concreto desfasados y unidos por un elemento vertical de granito que vestÃbulo el área pública de la privada. El volumen más alargado contiene cuatro diferentes habitaciones, una recamara principal, 2 habitaciones secundarias y otra para invitados. En el segundo volumen se encuentra la cocina, un área de estar (sala-comedor) unidos por una terraza, y en la parte posterior un cuarto de servicio.


Ambos volúmenes fueron diseñados en proporción 4:1; de ahà el nombre de la casa; el uso de materiales aparentes como concreto, granito negro y cristal, logran que la casa se integre a la montaña. A pesar de lo accidentado del terreno, a través de la composición de plataformas y el desfase de la volumetrÃa se conectaron todos los espacios mediante rampas una al interior de la casa y otra al exterior.


La consolidación de plataformas como también la un carril de nado de 25 ml ubicados en paralelo a la horizontal de la casa van subrayando el horizonte y la gran vista que cuenta de la ciudad de Cuernavaca.


El contexto, la orientación y la vista del sitio juegan un papel fundamental en el proyecto, ya que la casa responde con grandes ventanas como volados de concreto para generar sombras y lograr que la casa sea fresca, utilizando un sistema siempre la ventilación cruzada en todas las habitaciones como en los espacios de estar.


Wide Screen no pretende ser una casa ecológica, pero si una casa donde se utilicen de manera eficiente los recursos naturales. Por ejemplo la calefacción de la alberca y de la casa se resuelve en la azotea de la casa aprovechando una superficie con gran cantidad de asoleamiento. Todos los espacios cuentan con ventilación cruzada, por lo que descartó en algún momento platear una equipos de aire acondicionado para refrescar la casa.










Arquitectos: R Zero Studio
Ubicación: Jiutepec, Morelos, Mexico
Equipo: Edgar Velasco Casillas, Alejandro Zarate de la Torre, Gilberto Muñoz +, Isaac Guzman Ramirez, Ariadna Lopez Almaraz, Pablo Serrano
Estructura: Giron Megaproyectos S.A. de C.V. Ing. Humberto Giron
IngenierÃa: Integra S.A. de C.V.
Construcción y administración: Nano C S.A. de C.V. Román GarcÃa
FotografÃas: Pedro Iriart










La casa se resuelve en dos volúmenes de concreto desfasados y unidos por un elemento vertical de granito que vestÃbulo el área pública de la privada. El volumen más alargado contiene cuatro diferentes habitaciones, una recamara principal, 2 habitaciones secundarias y otra para invitados. En el segundo volumen se encuentra la cocina, un área de estar (sala-comedor) unidos por una terraza, y en la parte posterior un cuarto de servicio.
Ambos volúmenes fueron diseñados en proporción 4:1; de ahà el nombre de la casa; el uso de materiales aparentes como concreto, granito negro y cristal, logran que la casa se integre a la montaña. A pesar de lo accidentado del terreno, a través de la composición de plataformas y el desfase de la volumetrÃa se conectaron todos los espacios mediante rampas una al interior de la casa y otra al exterior.
La consolidación de plataformas como también la un carril de nado de 25 ml ubicados en paralelo a la horizontal de la casa van subrayando el horizonte y la gran vista que cuenta de la ciudad de Cuernavaca.
El contexto, la orientación y la vista del sitio juegan un papel fundamental en el proyecto, ya que la casa responde con grandes ventanas como volados de concreto para generar sombras y lograr que la casa sea fresca, utilizando un sistema siempre la ventilación cruzada en todas las habitaciones como en los espacios de estar.
Wide Screen no pretende ser una casa ecológica, pero si una casa donde se utilicen de manera eficiente los recursos naturales. Por ejemplo la calefacción de la alberca y de la casa se resuelve en la azotea de la casa aprovechando una superficie con gran cantidad de asoleamiento. Todos los espacios cuentan con ventilación cruzada, por lo que descartó en algún momento platear una equipos de aire acondicionado para refrescar la casa.
Arquitectos: R Zero Studio
Ubicación: Jiutepec, Morelos, Mexico
Equipo: Edgar Velasco Casillas, Alejandro Zarate de la Torre, Gilberto Muñoz +, Isaac Guzman Ramirez, Ariadna Lopez Almaraz, Pablo Serrano
Estructura: Giron Megaproyectos S.A. de C.V. Ing. Humberto Giron
IngenierÃa: Integra S.A. de C.V.
Construcción y administración: Nano C S.A. de C.V. Román GarcÃa
FotografÃas: Pedro Iriart

Publicar un comentario