Zapiola 3625 - intile&rogers arquitectura
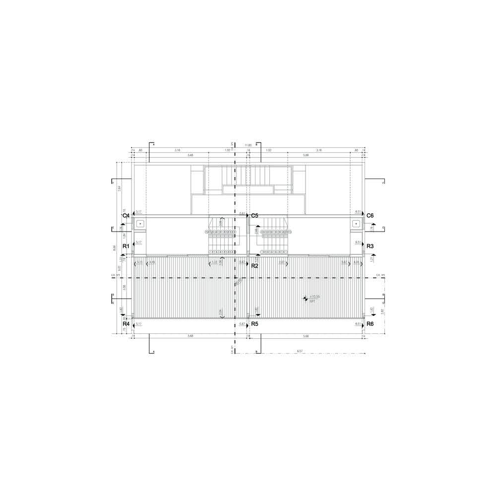
El edificio se emplaza en un lote del barrio Saavedra, cuyas dimensiones son particulares: 12m de frente por 8.66m de profundidad. Las cuatro viviendas fueron provistas de espacios exteriores proporcionales a sus respectivas superficies cubiertas. La planta baja se utiliza como cochera y acceso común.

Los dos monoambientes están dispuestos en forma pasante (patio-interior-calle) en el primer nivel. Los dúplex,con acceso en el segundo nivel, miran al frente para evitar interferir la privacidad de los patios del primero. El edificio cuenta con un sistema de doble cerramiento de chapa perforada y carpintería de aluminio, que limita su ancho al espesor del muro.

La cubierta viva brinda un paisaje especial en su contexto, al tiempo que colabora, al igual que el cerramiento perforado, con la disminución del consumo energético. La estructura, alivianada con esferas de plástico reciclado, fue ejecutada en hormigón sin vigas. Los muros de mampostería de ladrillo hueco están revocados con un salpicado de cemento blanco.


COMPRAR EN AMAZON
Arquitectos: intile&rogers arquitectura
Ubicación: Zapiola 3625, Buenos Aires, Argentina
Año Proyecto: 2009
Área Proyecto: 337.0 m2
Calculo Estructura: Ing. Ariel Fridman
Calculo Instalaciones: intile&rogers arquitectura
Fotografías: Denise Giovanelli











Los dos monoambientes están dispuestos en forma pasante (patio-interior-calle) en el primer nivel. Los dúplex,con acceso en el segundo nivel, miran al frente para evitar interferir la privacidad de los patios del primero. El edificio cuenta con un sistema de doble cerramiento de chapa perforada y carpintería de aluminio, que limita su ancho al espesor del muro.


La cubierta viva brinda un paisaje especial en su contexto, al tiempo que colabora, al igual que el cerramiento perforado, con la disminución del consumo energético. La estructura, alivianada con esferas de plástico reciclado, fue ejecutada en hormigón sin vigas. Los muros de mampostería de ladrillo hueco están revocados con un salpicado de cemento blanco.




COMPRAR EN AMAZON
Arquitectos: intile&rogers arquitectura
Ubicación: Zapiola 3625, Buenos Aires, Argentina
Año Proyecto: 2009
Área Proyecto: 337.0 m2
Calculo Estructura: Ing. Ariel Fridman
Calculo Instalaciones: intile&rogers arquitectura
Fotografías: Denise Giovanelli











Publicar un comentario