Cocina abierta y luminosa por Santos Estudio Gijón
Pocas emociones pueden compararse a la construcción de una primera vivienda.
Especialmente cuando, como en este caso, los protagonistas son una joven pareja con un hijo pequeño y otro a punto de nacer. Se trata de un momento único y especial, en el que los deseos e ilusiones se arremolinan y todo se orienta a un objetivo primordial: crear un hogar con personalidad que, respondiendo a las necesidades y costumbres de sus habitantes, les ayude a hacer su vida más cómoda, agradable y placentera.
Cuando los propietarios tuvieron en sus manos los planos de la casa, contactaron con Santos Estudio Gijón para abordar la que, para ellos, sería la estancia más importante: la cocina. Deseaban que se abriese al salón comedor, que contase con suficientes espacios de almacenaje, que les facilitase las tareas y, sobre todo, que les permitiese disfrutar en familia. De hecho, hicieron especial hincapié en la cantidad de horas que pasan juntos en ella, de ahí que se planificase una zona con mesa habilitada para tal fin, comunicada pero separada del área de trabajo.

La cocina recibe abundante luz natural por dos de sus caras, a través de una puerta corredera y un amplio ventanal orientado al jardín. Este aspecto se potencia recurriendo a un mobiliario que combina los modelos LINE-L y SEDA de Santos, ambos en acabado Blanco Nieve, con zócalos y perfiles de golas horizontales en aluminio blanco. El diseño minimalista de los muebles funciona especialmente bien en esta arquitectura, definida por la gran altura de la cubierta y la ausencia de obstáculos visuales.
Como contrapunto actúan las vigas de madera, la pintura de las paredes y la barra de roble macizo que, con su calidez, aportan una nota de equilibrio al conjunto, confiriéndole un carácter amable y hogareño. El suelo hidráulico, a juego con la barra de la isla, también suma en este sentido, extendiéndose por toda la planta para armonizar y trasladar esta sensación a los distintos ambientes.
Todos los elementos se alían para conformar una atmósfera serena, ligera y muy luminosa, en la que resulta sencillo desconectar de las rutinas diarias.

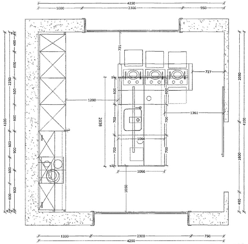
La organización del mobiliario planteada por Santos Estudio Gijón busca sacar el máximo partido a una planta de 17 m2, pero sin sobrecargarla. Así, ubica estratégicamente una isla en el centro de la estancia, justo frente al ventanal y la puerta corredera, para que los usuarios puedan beneficiarse de la luz exterior y las vistas mientras trabajan.
Este elemento incluye una amplia superficie de trabajo y la zona de fregado, además de múltiples soluciones en ambas caras. En la interior, un lavavajillas integrado, un módulo portafregadero con cubos de reciclaje y un amplio cajonero.
En la exterior, dos cajoneros más y un módulo bajo de servicio.
Como detalle final, a la isla se anexa una barra de roble macizo de Santos con patas en aluminio blanco, que resulta muy útil como área de trabajo adicional o como mesa para disfrutar de un desayuno o comida rápida.
En paralelo a la isla transcurre, a lo largo de todo un tabique, un espectacular lineal de muebles bajos, altos y columnas. El primer tramo acoge la zona de cocción, conformada por dos módulos portaplaca estructurados en tres niveles de cajones de extracción total y gran capacidad. Sobre ellos cuelgan tres muebles altos de apertura plegable: dos de servicio y un tercero que integra el grupo filtrante. La salida de humos se resuelve con un tubo idéntico al de la chimenea del salón, un detalle muy cuidado que aporta continuidad estética a los ambientes.
El amueblamiento se completa con cuatro armarios columna anexos a la zona de cocción, una composición que reúne, en un espacio compacto y organizado, dos hornos, dos frigoríficos combi y un módulo portaútiles de limpieza, además de varios espacios adicionales de almacenaje.

Esta distribución permite que todo se encuentre a mano a la hora de trabajar, minimizando los desplazamientos necesarios cuando se prepara un plato. También favorece la entrada de luz natural a la estancia, y permite que los usuarios puedan moverse con holgura, compartiendo tareas o espacios sin molestarse.
Una vez instalados en su nuevo hogar, los propietarios han reconocido que la cocina es su estancia preferida. En ella es donde pasan más tiempo y, tal vez por esto, se sienten especialmente orgullosos del resultado final.

El proyecto
Diseño cocina Santos Estudio Gijón, distribuidor de la marca de mobiliario de cocina Santos
—
Celestino Junquera, 11
33202 Gijón, Asturias
T 985 890 699
info@santosgijon.es
https://santosgijon.es/
Arquitectura Aracil Arquitectura
http://aracilarquitectura.com/
Decoración Rafael Álvarez (Santos Estudio Gijón)
Fotografía Adolfo Fernández
http://adolfofernandez.net/
La vivienda
Tipología Vivienda unifamiliar
La cocina
Dimensiones 17,50 m2
Distribución Lineal con isla
Mobiliario Santos, modelos LINE-L Blanco Nieve
(isla, módulos bajos y altos) y SEDA
Blanco Nieve (armarios columna)
http://santos.es/
Frentes Laminado seda mate
Cantos poliméricos mate 1 mm
Tirador Sin tirador
Tirador de barra (Armarios columna)
Encimera Silestone Blanco Zeus
https://www.silestone.es/
Especialmente cuando, como en este caso, los protagonistas son una joven pareja con un hijo pequeño y otro a punto de nacer. Se trata de un momento único y especial, en el que los deseos e ilusiones se arremolinan y todo se orienta a un objetivo primordial: crear un hogar con personalidad que, respondiendo a las necesidades y costumbres de sus habitantes, les ayude a hacer su vida más cómoda, agradable y placentera.
Cuando los propietarios tuvieron en sus manos los planos de la casa, contactaron con Santos Estudio Gijón para abordar la que, para ellos, sería la estancia más importante: la cocina. Deseaban que se abriese al salón comedor, que contase con suficientes espacios de almacenaje, que les facilitase las tareas y, sobre todo, que les permitiese disfrutar en familia. De hecho, hicieron especial hincapié en la cantidad de horas que pasan juntos en ella, de ahí que se planificase una zona con mesa habilitada para tal fin, comunicada pero separada del área de trabajo.
La cocina recibe abundante luz natural por dos de sus caras, a través de una puerta corredera y un amplio ventanal orientado al jardín. Este aspecto se potencia recurriendo a un mobiliario que combina los modelos LINE-L y SEDA de Santos, ambos en acabado Blanco Nieve, con zócalos y perfiles de golas horizontales en aluminio blanco. El diseño minimalista de los muebles funciona especialmente bien en esta arquitectura, definida por la gran altura de la cubierta y la ausencia de obstáculos visuales.
Como contrapunto actúan las vigas de madera, la pintura de las paredes y la barra de roble macizo que, con su calidez, aportan una nota de equilibrio al conjunto, confiriéndole un carácter amable y hogareño. El suelo hidráulico, a juego con la barra de la isla, también suma en este sentido, extendiéndose por toda la planta para armonizar y trasladar esta sensación a los distintos ambientes.
Todos los elementos se alían para conformar una atmósfera serena, ligera y muy luminosa, en la que resulta sencillo desconectar de las rutinas diarias.
La organización del mobiliario planteada por Santos Estudio Gijón busca sacar el máximo partido a una planta de 17 m2, pero sin sobrecargarla. Así, ubica estratégicamente una isla en el centro de la estancia, justo frente al ventanal y la puerta corredera, para que los usuarios puedan beneficiarse de la luz exterior y las vistas mientras trabajan.
Este elemento incluye una amplia superficie de trabajo y la zona de fregado, además de múltiples soluciones en ambas caras. En la interior, un lavavajillas integrado, un módulo portafregadero con cubos de reciclaje y un amplio cajonero.
En la exterior, dos cajoneros más y un módulo bajo de servicio.
Como detalle final, a la isla se anexa una barra de roble macizo de Santos con patas en aluminio blanco, que resulta muy útil como área de trabajo adicional o como mesa para disfrutar de un desayuno o comida rápida.
En paralelo a la isla transcurre, a lo largo de todo un tabique, un espectacular lineal de muebles bajos, altos y columnas. El primer tramo acoge la zona de cocción, conformada por dos módulos portaplaca estructurados en tres niveles de cajones de extracción total y gran capacidad. Sobre ellos cuelgan tres muebles altos de apertura plegable: dos de servicio y un tercero que integra el grupo filtrante. La salida de humos se resuelve con un tubo idéntico al de la chimenea del salón, un detalle muy cuidado que aporta continuidad estética a los ambientes.
El amueblamiento se completa con cuatro armarios columna anexos a la zona de cocción, una composición que reúne, en un espacio compacto y organizado, dos hornos, dos frigoríficos combi y un módulo portaútiles de limpieza, además de varios espacios adicionales de almacenaje.
Esta distribución permite que todo se encuentre a mano a la hora de trabajar, minimizando los desplazamientos necesarios cuando se prepara un plato. También favorece la entrada de luz natural a la estancia, y permite que los usuarios puedan moverse con holgura, compartiendo tareas o espacios sin molestarse.
Una vez instalados en su nuevo hogar, los propietarios han reconocido que la cocina es su estancia preferida. En ella es donde pasan más tiempo y, tal vez por esto, se sienten especialmente orgullosos del resultado final.
El proyecto
Diseño cocina Santos Estudio Gijón, distribuidor de la marca de mobiliario de cocina Santos
—
Celestino Junquera, 11
33202 Gijón, Asturias
T 985 890 699
info@santosgijon.es
https://santosgijon.es/
Arquitectura Aracil Arquitectura
http://aracilarquitectura.com/
Decoración Rafael Álvarez (Santos Estudio Gijón)
Fotografía Adolfo Fernández
http://adolfofernandez.net/
La vivienda
Tipología Vivienda unifamiliar
La cocina
Dimensiones 17,50 m2
Distribución Lineal con isla
Mobiliario Santos, modelos LINE-L Blanco Nieve
(isla, módulos bajos y altos) y SEDA
Blanco Nieve (armarios columna)
http://santos.es/
Frentes Laminado seda mate
Cantos poliméricos mate 1 mm
Tirador Sin tirador
Tirador de barra (Armarios columna)
Encimera Silestone Blanco Zeus
https://www.silestone.es/

Publicar un comentario