Casa Tarahuin - Alberto Moleto
La casa del lago TarahuĆn, ubicada a 30 km. de chonchi en la isla de ChiloĆ© se emplaza en un abrupto terreno con acceso solo desde el lago y nace como respuesta al habitar planteado por su entorno inmediato.
El encargo: una “casa refugio” que habitara la pendiente del lugar y fuera capaz de dar cuenta del paisaje tanto desde el interior de la casa como de sus exteriores.
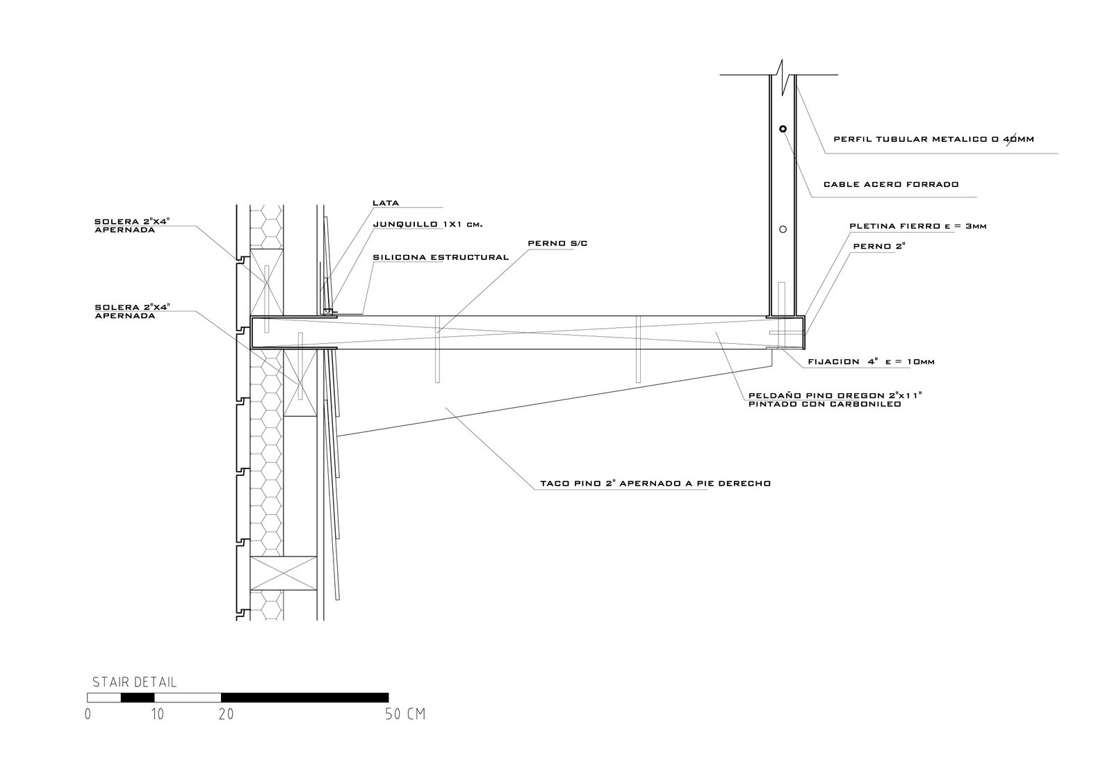
La obra: una casa donde sus recorridos dan cuenta de la dimensión vertical de la vegetación existente en el lugar (arrayanes) desde su base hasta sus copas, de este modo la terraza en la cubierta es el lugar de dominio del territorio, y las escaleras interior y exterior, son las que van dando cuenta de las alturas en las cuales se habita.La materialidad: estructura de canelo, revestimiento interior de mañio y exterior de tejuela de alerce.
Arquitecto:Alberto Moletto R.
Colaborador: Ignacio Pardo
Asesores TƩcnicos
Construcción: Alberto Muñoz
Calculo: Alberto Moletto - Ignacio Pardo
Localización: Lago TarahuĆn / Chonchi / ChiloĆ© / X Región
Superficie terreno: 5000 mt2
Superficie Interior: 56.88 mt2
Superficie total habitable: 134.41 mt2
AƱo Proyecto: Enero - Marzo 2004
Año Construcción: Marzo - Junio 2004
Materiales Predominantes: Estructura de canelo , Revestimiento interior de maƱio , Exterior de tejuela de alerce.
El encargo: una “casa refugio” que habitara la pendiente del lugar y fuera capaz de dar cuenta del paisaje tanto desde el interior de la casa como de sus exteriores.
La obra: una casa donde sus recorridos dan cuenta de la dimensión vertical de la vegetación existente en el lugar (arrayanes) desde su base hasta sus copas, de este modo la terraza en la cubierta es el lugar de dominio del territorio, y las escaleras interior y exterior, son las que van dando cuenta de las alturas en las cuales se habita.La materialidad: estructura de canelo, revestimiento interior de mañio y exterior de tejuela de alerce.
Arquitecto:Alberto Moletto R.
Colaborador: Ignacio Pardo
Asesores TƩcnicos
Construcción: Alberto Muñoz
Calculo: Alberto Moletto - Ignacio Pardo
Localización: Lago TarahuĆn / Chonchi / ChiloĆ© / X Región
Superficie terreno: 5000 mt2
Superficie Interior: 56.88 mt2
Superficie total habitable: 134.41 mt2
AƱo Proyecto: Enero - Marzo 2004
Año Construcción: Marzo - Junio 2004
Materiales Predominantes: Estructura de canelo , Revestimiento interior de maƱio , Exterior de tejuela de alerce.

















Publicar un comentario